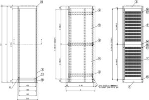
標準的なスチール製フレームのスタンダードラックです。
各種サイズも豊富です。
仕様
- 19インチ規格
- JIS C 6010-2 又は EIA-310-D の規格に準拠しています。
- 主要材質
- 鋼板
- 使用環境
- 屋内
特徴
- 標準本体と各種仕様による外装等オプション設定をご用意しています。
- 奥行きの長いサーバー機器を搭載できる D=1,000mm の機種も有ります。
- 価格を抑えるため、各外装レスによるお値引き設定をご用意しています。
- ガイドアングル固定をM5ユニバーサルピッチでおこないます。
製品型番一覧
RSシリーズ 製品型番一覧
| 品番 | 外形寸法 (H:高さ) | 外形寸法 (D:奥行) | パネル取付 有効スペ-ス | アンカー (X) | アンカー (Y) |
|---|---|---|---|---|---|
| RS-10U0660 | 600 | 600 | 10U | 350 | 440 |
| RS-14U0860 | 800 | 600 | 14U | 350 | 440 |
| RS-19U1060 | 1000 | 600 | 19U | 350 | 440 |
| RS-24U1260 | 1250 | 600 | 24U | 350 | 440 |
| RS-30U1560 | 1500 | 600 | 30U | 350 | 440 |
| RS-36U1760 | 1750 | 600 | 36U | 350 | 440 |
| RS-41U2060 | 2000 | 600 | 41U | 350 | 440 |
| RS-44U2160 | 2100 | 600 | 44U | 350 | 440 |
| RS-46U2260 | 2200 | 600 | 46U | 350 | 440 |
| RS-48U2360 | 2300 | 600 | 48U | 350 | 440 |
| RS-50U2460 | 2400 | 600 | 50U | 350 | 440 |
| RS-10U0670 | 600 | 700 | 10U | 350 | 540 |
| RS-14U0870 | 800 | 700 | 14U | 350 | 540 |
| RS-19U1070 | 1000 | 700 | 19U | 350 | 540 |
| RS-24U1270 | 1250 | 700 | 24U | 350 | 540 |
| RS-30U1570 | 1500 | 700 | 30U | 350 | 540 |
| RS-36U1770 | 1750 | 700 | 36U | 350 | 540 |
| RS-41U2070 | 2000 | 700 | 41U | 350 | 540 |
| RS-44U2170 | 2100 | 700 | 44U | 350 | 540 |
| RS-46U2270 | 2200 | 700 | 46U | 350 | 540 |
| RS-48U2370 | 2300 | 700 | 48U | 350 | 540 |
| RS-50U2470 | 2400 | 700 | 50U | 350 | 540 |
| RS-10U0680 | 600 | 800 | 10U | 350 | 540 |
| RS-14U0880 | 800 | 800 | 14U | 350 | 540 |
| RS-19U1080 | 1000 | 800 | 19U | 350 | 540 |
| RS-24U1280 | 1250 | 800 | 24U | 350 | 540 |
| RS-30U1580 | 1500 | 800 | 30U | 350 | 540 |
| RS-36U1780 | 1750 | 800 | 36U | 350 | 540 |
| RS-41U2080 | 2000 | 800 | 41U | 350 | 540 |
| RS-44U2180 | 2100 | 800 | 44U | 350 | 540 |
| RS-46U2280 | 2200 | 800 | 46U | 350 | 540 |
| RS-48U2380 | 2300 | 800 | 48U | 350 | 540 |
| RS-50U2480 | 2400 | 800 | 50U | 350 | 540 |
| RS-10U0690 | 600 | 900 | 10U | 350 | 740 |
| RS-14U0890 | 800 | 900 | 14U | 350 | 740 |
| RS-19U1090 | 1000 | 900 | 19U | 350 | 740 |
| RS-24U1290 | 1250 | 900 | 24U | 350 | 740 |
| RS-30U1590 | 1500 | 900 | 30U | 350 | 740 |
| RS-36U1790 | 1750 | 900 | 36U | 350 | 740 |
| RS-41U2090 | 2000 | 900 | 41U | 350 | 740 |
| RS-44U2190 | 2100 | 900 | 44U | 350 | 740 |
| RS-46U2290 | 2200 | 900 | 46U | 350 | 740 |
| RS-48U2390 | 2300 | 900 | 48U | 350 | 740 |
| RS-50U2490 | 2400 | 900 | 50U | 350 | 740 |
| RS-10U0610 | 600 | 1000 | 10U | 350 | 840 |
| RS-14U0810 | 800 | 1000 | 14U | 350 | 840 |
| RS-19U1010 | 1000 | 1000 | 19U | 350 | 840 |
| RS-24U1210 | 1250 | 1000 | 24U | 350 | 840 |
| RS-30U1510 | 1500 | 1000 | 30U | 350 | 840 |
| RS-36U1710 | 1750 | 1000 | 36U | 350 | 840 |
| RS-41U2010 | 2000 | 1000 | 41U | 350 | 840 |
| RS-44U2110 | 2100 | 1000 | 44U | 350 | 840 |
| RS-46U2210 | 2200 | 1000 | 46U | 350 | 840 |
| RS-48U2310 | 2300 | 1000 | 48U | 350 | 840 |
| RS-50U2410 | 2400 | 1000 | 50U | 350 | 840 |
| RS-10U0611 | 600 | 1100 | 10U | 350 | 940 |
| RS-14U0811 | 800 | 1100 | 14U | 350 | 940 |
| RS-19U1011 | 1000 | 1100 | 19U | 350 | 940 |
| RS-24U1211 | 1250 | 1100 | 24U | 350 | 940 |
| RS-30U1511 | 1500 | 1100 | 30U | 350 | 940 |
| RS-36U1711 | 1750 | 1100 | 36U | 350 | 940 |
| RS-41U2011 | 2000 | 1100 | 41U | 350 | 940 |
| RS-44U2111 | 2100 | 1100 | 44U | 350 | 940 |
| RS-46U2211 | 2200 | 1100 | 46U | 350 | 940 |
| RS-48U2311 | 2300 | 1100 | 48U | 350 | 940 |
| RS-50U2411 | 2400 | 1100 | 50U | 350 | 940 |






